House renovation: Feb 2022
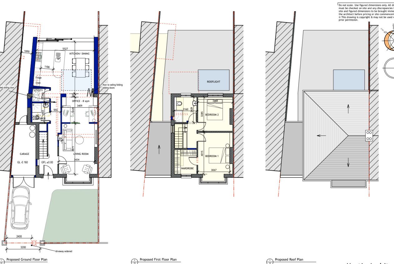
After discussing several options back in January, Philip sends us four sketches of how the new house layout may look like.

We pick them apart, and merge options 1 and 3 to a hybrid option 5.

This (and pretty much all other) option requires us to build a small extension. Normally we could have done this without asking for permission, but ours will be just slightly to the side. So it turns out we'll have to apply for planning permission. So Philip started preparing documents for this.
The Putin starts the war in Ukraine. This shook us, but being in Ireland there was not much we can do and we had our own problem/project to focus on.


Comments