House renovation: Jan 2022
First order of business after purchasing our fixer-upper was finding an architect.
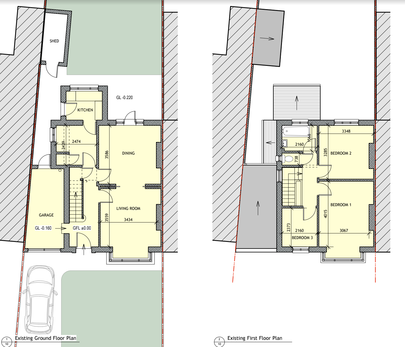
The house has too many small rooms on ground floor. Kitchen is in a small, very poorly built extension and it's clear it'll have to be demolished - it had holes you can see through to the outside. First floor was better, although too very dated.
So it was clear there is some work for architect. Besides, we weren't really sure where to start and several people told us architects can act as a guide / overall project manager.
I knew Dave had some something similar to his house so I asked who he used, did some search and sent a few e-mails myself.
Many didn't answer.
Some said they are too busy.
Several said our budget is too small and that we should add €150,000 more (update from 2023: in retrospect, they were right but I doubt they could foresee inflation back from Jan 2022).
Philip (who was Dave's recommendation) was happy to work with us, was responsive, and was listening.
We met at the house first week of January and agreed to proceed shortly after. By the end of the month he completed the survey of the house and started working on initial design sketch (COVID slowed things down a bit).

Meanwhile we've also discovered that water upstairs should not be used.

Comments